Bàn cầu một khối V823 + Xịt VG826 của Viglacera là lựa chọn lý tưởng cho không gian vệ sinh tiện nghi, mang đến trải nghiệm sử dụng êm ái và sạch khuẩn vượt trội. Với công nghệ xả Max Vortex mạnh mẽ, men Nano Ag+ Ceramic kháng khuẩn cùng thiết kế thân kín dễ vệ sinh, sản phẩm không chỉ tối ưu hiệu quả sử dụng mà còn duy trì độ bền sáng bóng theo thời gian.
Thông số Bàn cầu một khối V823 + Xịt VG826
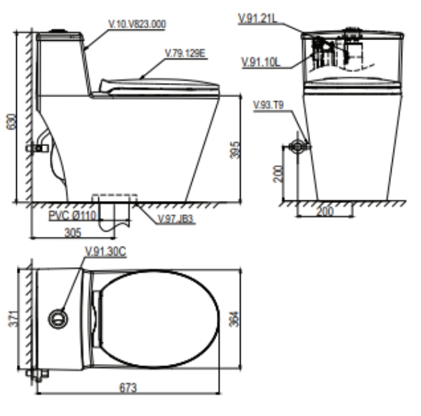
- Kích thước: D695 x R378 x C673
- Kiểu dáng: Bồn cầu một khối (két liền)
- Chế độ xả: Nhấn 2 mức 4.5L/3L
- Công nghệ xả: Max Vortex – xả nhanh, xoáy mạnh, hạn chế tiếng ồn
- Nắp bồn cầu: Nắp rơi êm, giảm va đập khi đóng mở
- Công nghệ men: Ag+ Ceramic – chứa ion bạc kháng khuẩn
- Chất liệu men: Nano nung, chống bám dính, dễ vệ sinh
- Công nghệ: Ý
- Sản xuất tại Việt Nam
- Tiêu chuẩn: ASME (Hoa Kỳ)
Tính năng nổi bật Bàn cầu một khối V823 + Xịt VG826
- Bồn cầu V823 được trang bị hệ thống xả Max Vortex tạo lực xoáy mạnh giúp cuốn trôi chất thải nhanh chóng, tiết kiệm nước và giảm thiểu tiếng ồn trong quá trình sử dụng.
- Lớp men Nano nung Ag+ Ceramic diệt khuẩn, chống bám cặn và hạn chế vi khuẩn sinh sôi, đảm bảo bề mặt luôn sáng bóng và an toàn cho sức khỏe.
Thiết kế thân kín giúp vệ sinh dễ dàng, không bám bụi và không để đọng nước. - Cấu trúc không vành trơn láng giúp dòng nước xả bao phủ đều, loại bỏ cặn bẩn hiệu quả.
- Bề mặt sản phẩm được thủy tinh hóa cao cấp, tăng khả năng chống thấm, chống ố vàng, duy trì độ bền đẹp lâu dài.
- Sản phẩm đạt tiêu chuẩn ASME Hoa Kỳ, đảm bảo độ bền cơ học và khả năng vận hành ổn định.
Bản vẽ kỹ thuật Bàn cầu một khối V823 + Xịt VG826

Danh mục: Thiết Bị Vệ Sinh / Bồn Cầu / Bồn cầu VIGLACERA / Bồn Cầu Viglacera 1 Khối
Thương hiệu: Thiết Bị Vệ Sinh VIGLACERA
Review Bàn cầu một khối V823 + Xịt VG826
Chưa có đánh giá nào.