Bàn cầu một khối V808 + Xịt VG826 + VG853 được trang bị công nghệ men sứ Nano Titan kháng khuẩn, chống bám bẩn hiệu quả, cùng hệ thống xả xoáy 3 cửa TURBO VORTEX mạnh mẽ kết hợp Siphon Jet giúp cuốn trôi nhanh và sạch. Sản phẩm có hai chế độ xả nhấn tiết kiệm nước 3L/6L, đi kèm nắp rơi êm V39 và vòi xịt VG826, mang lại trải nghiệm tiện nghi, vận hành êm ái và bền bỉ theo thời gian.
Thông số Bàn cầu một khối V808 + Xịt VG826 + VG853
- Kiểu dáng: Một khối liền mạch
- Chế độ xả: 2 chế độ nhấn 6L/3L
- Nắp: V39 rơi êm
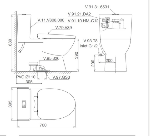
- Kích thước: 700 x 395 x 680 mm
- Tâm thoát: 305 mm
- Áp lực nước: 0.05 MPa ~ 0.75 MPa
- Công nghệ xả: TURBO VORTEX + Siphon Jet
- Chất liệu men sứ: Nano Titan kháng khuẩn
- Xuất xứ: Việt Nam – Công nghệ Ý
- Tặng kèm: Vòi xịt VG826, con thỏ rời
- Màu sắc: Trắng
Tính năng nổi bật Bàn cầu một khối V808 + Xịt VG826 + VG853
- Thiết kế một khối liền mạch giúp hạn chế khe bám bụi, dễ vệ sinh và duy trì độ sáng bóng lâu dài
- Ứng dụng công nghệ xả xoáy 3 cửa TURBO VORTEX kết hợp Siphon Jet, tạo lực cuốn mạnh và giảm tối đa cặn bẩn sau mỗi lần xả
- Men sứ Nano Titan tăng khả năng kháng khuẩn, chống bám dính, giúp bề mặt luôn sạch và an toàn cho người sử dụng
- Nắp V39 rơi êm, giảm tiếng ồn khi đóng mở, tăng tuổi thọ cho bản lề và đảm bảo trải nghiệm nhẹ nhàng
- Cơ chế xả nhấn kép 3L/6L giúp tiết kiệm nước hiệu quả, phù hợp cho nhu cầu sử dụng linh hoạt
- Vòi xịt VG826 đi kèm cho khả năng làm sạch tiện lợi, áp lực nước ổn định và dễ điều chỉnh
- Được sản xuất tại Việt Nam theo công nghệ Ý, bảo đảm độ bền, khả năng vận hành ổn định và chất lượng cao


Bản vẽ kỹ thuật Bàn cầu một khối V808 + Xịt VG826 + VG853

Danh mục: Thiết Bị Vệ Sinh / Bồn Cầu / Bồn cầu VIGLACERA / Bồn Cầu Viglacera 1 Khối
Thương hiệu: Thiết Bị Vệ Sinh VIGLACERA
Review Bàn cầu một khối V808 + Xịt VG826 + VG853
Chưa có đánh giá nào.